Większa prędkość w inżynierii
Nowa Platforma EPLAN 2023
Nowa Platforma EPLAN 2023 usprawnia i przyspiesza planowanie projektów. Oznacza to, że użytkownicy mogą teraz szybciej uzyskać zaplanowane rezultaty korzystając z uproszczonego systemu zarządzania danymi urządzeń, przy jednoczesnym zwiększeniu ogólnej jakości projektu. Ta funkcja jest niezastąpiona w szczególności podczas pracy nad projektami międzynarodowymi. Nowy silnik graficzny 3D, zoptymalizowany edytor kabli oraz nowe Centrum wprowadzania zapewniają również użytkownikom większą wydajność i przejrzystość inżynierii.

»Nowo wprowadzona obsługa wielu standardów w Platformie EPLAN 2023 eliminuje konieczność zajmowania się przez użytkowników zarządzaniem danymi urządzeń, które wcześniej było dość czasochłonne, zwłaszcza w projektach międzynarodowych,» mówi Thomas Weichsel, wiceprezes ds. portfolio oprogramowania w firmie EPLAN.
Monheim, Niemcy, 5 września 2022. Nowa Platforma EPLAN 2023 oferuje wiele nowych funkcji, które ułatwiają jej użytkowanie i zapewniają użytkownikom oszczędność czasu i większą wydajność. Thomas Weichsel, wiceprezes ds. portfolio oprogramowania w firmie EPLAN, dodaje »Wraz z wieloma możliwościami współpracy w zakresie inżynierii, nowo wprowadzona obsługa wielu standardów w Platformie EPLAN 2023 eliminuje konieczność zajmowania się przez użytkowników zarządzaniem danymi urządzeń, które wcześniej było dość czasochłonne, zwłaszcza w projektach międzynarodowych.»
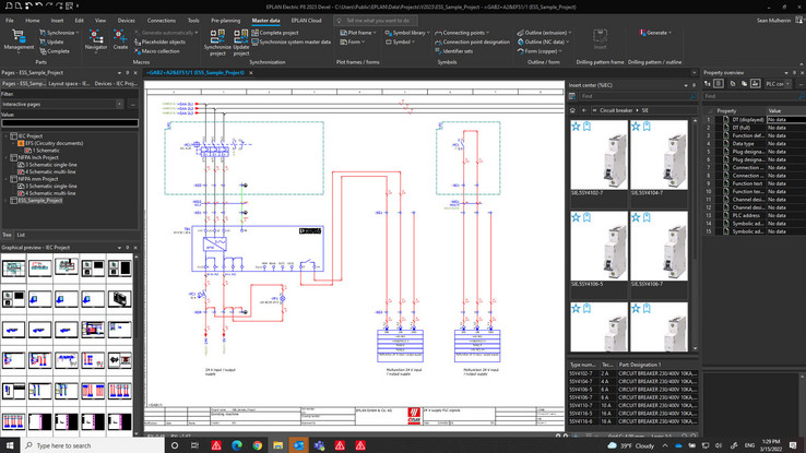
Zgodność ze standardami. Urządzenia z maksymalnie dwudziestoma makrami schematów
Standardy urządzeń charakterystyczne dla firm, takie jak wytyczne, różne specyfikacje wymiarów i różne normy obowiązujące na rynkach światowych, na przykład NFPA lub IEC, wymagają różnych sposobów ich przedstawiania na schematach. Wcześniej można było zapisać tylko jedno makro na urządzenie. Dzięki nowemu systemowi zarządzania danymi urządzeń, do każdego urządzenia można teraz przypisać do dwudziestu różnych makr schematów. Zaletą dla użytkowników jest fakt, że oprogramowanie automatycznie przypisuje teraz odpowiednie makro po wybraniu odpowiedniej normy, które można łatwo przenieść do schematu za pomocą funkcji „drag and drop”. Upraszcza to w znacznym stopniu obsługę urządzeń, gwarantuje lepszy przegląd projektu i ułatwia administrowanie danymi.
Producenci komponentów, którzy dostarczają dane urządzeń do EPLAN Data Portal, w tym zgodnych ze standardem EPLAN Data Standard (EDS), również odnoszą wielowymiarowe korzyści. Jak wyjaśnia Weichsel: »W przyszłości na przykład sterownik będzie mógł być przechowywany jako jeden zestaw danych z różnymi makrami w EPLAN Data Portal, co znacznie zmniejsza nakład pracy wymagany od producentów w celu dostarczenia i aktualizacji swoich danych.»
EPLAN eStock. Zarządzanie urządzeniami w chmurze
Korzystanie z EPLAN eStock, nowego systemu zarządzania danymi urządzeń w Platformie EPLAN 2023 oznacza, że dane urządzeń mogą być teraz utrzymywane w chmurze EPLAN. Dzięki temu współpraca między uczestnikami projektu jest jeszcze łatwiejsza, co wpływa na skrócenie czasu koordynacji oraz eliminuje zakłócenia. Dostęp do EPLAN eStock działa niezależnie od lokalizacji firmy, wszyscy uczestnicy mogą łatwo i bezpiecznie uzyskać dostęp do danych urządzeń w chmurze, niezależnie od tego, czy pracują w domu, znajdują się w innej lokalizacji firmy gdziekolwiek na świecie, czy dzielą się danymi z partnerami biznesowymi. Firmy oszczędzają w ten sposób czas, nie wspominając o kosztach utworzenia i utrzymania własnej, dodatkowej infrastruktury IT.
Silnik graficzny 3D zapewnia większą wydajność
Maszyny i instalacje stają się coraz bardziej zautomatyzowane, a cyfrowy bliźniak staje się integralną częścią procesów inżynierii szaf sterowniczych i rozdzielnic. Towarzyszy temu rosnąca złożoność i coraz większe wymagania w zakresie strukturyzacji modeli 3D układów szaf sterowniczych. Ilość danych i informacji, którymi trzeba zarządzać, rośnie proporcjonalnie. Wcześniej użytkownicy potrzebowali dużo cierpliwości, zwłaszcza w przypadku renderowania dużych modeli 3D. Dzięki nowemu silnikowi graficznemu Engine Direct3D, firma EPLAN znacznie przyspieszyła procesy projektowe. Renderowanie 3D jest teraz znacznie szybsze, a czynności, takie jak powiększanie lub obracanie, są znacznie płynniejsze i łatwiejsze.

Specyficzne dla firm standardy, takie jak wytyczne, specyfikacje wymiarów i różne standardy światowe, na przykład NFPA, można teraz łatwo przedstawić za pomocą nowego systemu zarządzania urządzeniami.
Edytor do zoptymalizowanego zarządzania kablami
Platforma EPLAN 2023 upraszcza również okablowanie szaf sterowniczych, które są rozproszone na terenie zakładu w sposób zdecentralizowany. Na przykład, nowy edytor kabli ułatwia zarządzanie kablami i ich wizualizację na Platformie EPLAN, niezależnie od liczby żył. Numer i typ urządzenia, źródło i miejsce docelowe oraz ekranowanie i połączenie są wyświetlane graficznie w jednym oknie dialogowym. Nowy edytor okablowania, stanowiący podstawę do okablowania maszyn wirtualnych, ułatwia określenie długości okablowania w EPLAN Harness proD. Informacje o kablach są teraz widoczne na pierwszy rzut oka, począwszy od źródła, aż do miejsca docelowego.
Centrum wprowadzania. Lepszy przegląd projektu
Symbole, makra i urządzenia mogą być teraz wyświetlane w bardziej skoncentrowany sposób, jako tabela w oknie dialogowym. Umożliwia to rozszerzone Centrum wprowadzania w Platformie EPLAN 2023, które zapewnia lepszy przegląd projektu. Użytkownicy mogą również intuicyjnie wyszukiwać urządzenia, nawet w zewnętrznych lub połączonych dokumentach. Jeśli potrzebujemy sprawdzić, które komponenty wymagają jakiego prądu, wystarczy kliknąć w tabelę, a informacje logiczne są bezpośrednio widoczne. Nowa funkcja tagowania ułatwia również nawigację, a logiczne ścieżki wyboru i lepsze struktury projektów przyspieszają zarówno wyszukiwanie, jak i ogólne planowanie projektu. Nowy interfejs do programu Microsoft Excel ułatwia pracę użytkownikom, gdyż nie muszą już oni samodzielnie instalować oprogramowania, aby wyprowadzać dane w tym formacie. Dzięki temu tworzenie list i tabel jest teraz bardziej wydajne.


